Mieszkanie, Poznań Grunwald, ul. Kamiennogórska

Sprzedaż

img

Na sprzedaż mieszkanie 3-pokojowe na poznańskim Grunwaldzie, ulica Kamiennogórska. Mieszkanie idealne dla:

  • Singla
  • Pary
  • Osób mających problem z poruszaniem się ze względu na bezprogowy dostęp do lokalu
  • Pod wynajem

O mieszkaniu

  • Lokal znajduje się w bloku wybudowanym w 2018 roku przez Ronson Development
  • Powierzchnia całkowita 63,66 m² plus balkon 8 m²
  • Mieszkanie zadbane, urządzone spójnie i estetycznie
  • Na balkonie zamontowana profesjonalnie siatka zabezpieczająca
  • 2 lata temu zamontowano w każdym pokoju klimatyzację
  • 2 lata temu zostały wymienione panele w pokojach (sypialnia i gabinet), odmalowano ściany
  • W salonie z aneksem, korytarzu oraz w łazience na podłodze gres
  • Zabudowa meblowa w kuchni, łazience, salonie oraz korytarzu wykonana przez stolarza
  • Czynsz do wspólnoty około 1 100 zł/miesiąc
  • Dodatkowo płatny prąd i internet (światłowód)
  • W łazience prysznic typu walk-in
  • Obligatoryjny zakup miejsca postojowego w hali garażowej w cenie 40 tys. dodatkowo

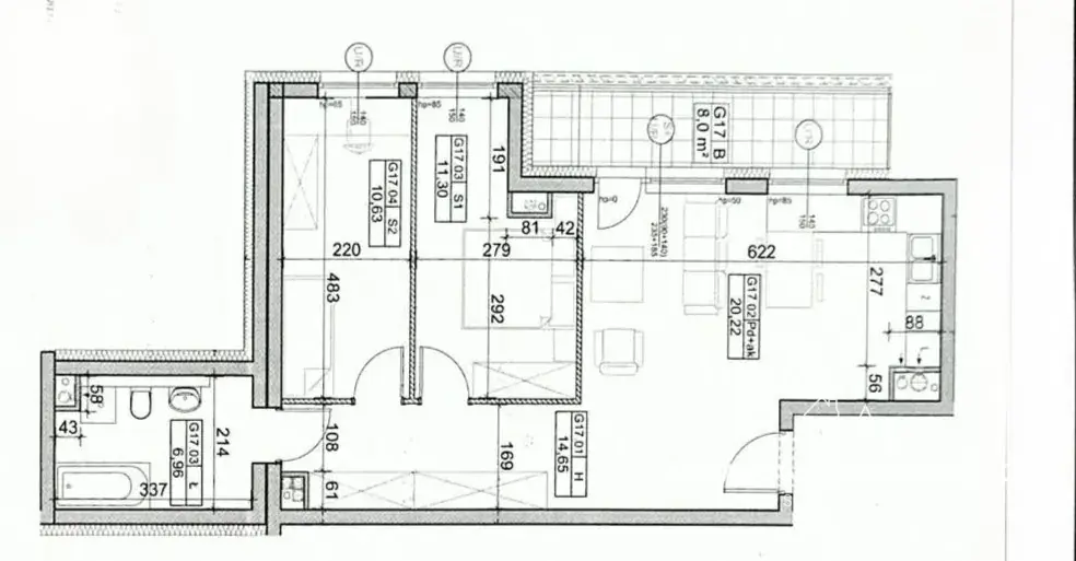
Układ

  • Salon z aneksem kuchennym: 20,12 m²
  • Korytarz: 14,65 m²
  • Łazienka: 6,96 m²
  • Sypialnia: 11,30 m²
  • Gabinet: 10,63 m²
  • Balkon: 8 m²

Lokalizacja

  • Grunwald, ulica Kamiennogórska, osiedle zamknięte
  • W obrębie osiedla lokale usługowe i gastronomiczne
  • W odległości około 500 m sklep Aldi, około 900 m Biedronka
  • Przystanek tramwajowy Budziszyńska około 850 m
  • Lasek Marceliński około 500 m

Stan prawny

  • Prawo własności do nieruchomości lokalowej wraz z udziałem w gruncie z założoną Księgą Wieczystą

Powyższy opis ma charakter informacyjny i nie stanowi oferty w rozumieniu przepisów Kodeksu Cywilnego. Informacja przekazana w ogłoszeniu jest dokładna i rzetelna, ale nie jest gwarantowana i powinna zostać niezależnie zweryfikowana.

Umów bezpłatną konsultację

Porozmawiajmy o sprzedaży Twojej nieruchomości.

Odezwę się w ciągu 2 godzin w dni robocze.

Umów bezpłatną konsultację