Dom, Golęczewo, ul. Polna

Sprzedaż

img

Na sprzedaż dom wolnostojący w Golęczewie przy ul. Polnej.

O nieruchomości

  • dom wolnostojący z 2019 roku
  • powierzchnia użytkowa około 206,83 mkw plus dodatkowo garaż wolnostojący o powierzchni około 34 mkw.
  • działka 765 mkw.
  • dom nigdy nie zamieszkały, w idealnym stanie, wnętrze domu w pełni wykończone, wystarczy wstawić meble
  • przygotowana instalacja pod centralny odkurzacz
  • wysokiej jakości materiały, dom budowano dla własnych potrzeb
  • drewniane podłogi na parterze+gres, na piętrze panele
  • drzwi wewnętrzne drewniane
  • ogrzewanie gazowe, kocioł 2 funkcyjny z zasobnikiem na wodę 150 l firmy Viessmann
  • część parteru plus łazienki ogrzewanie podłogowe
  • w salonie kominek spełniający aktualne normy Ekoprojektu
  • na parterze okna plastikowe dwuszybowe, ramy pięciokomorowe z wbudowaną wentylacją
  • w oknach na parterze rolety sterowane elektrycznie
  • na piętrze okna drewniane Fakro wyposażone w rolety
  • pokrycie dachu dachówka cementowa
  • pełna media w tym kanalizacja
  • na terenie posesji dwa szamba, betonowe (prefabrykowane, woda używana do podlewania ogrodu) 10m3 i plastikowe 6m3 (podłączona deszczówka)
  • do zagospodarowania teren wokół domu plus położenie tzw baranka na elewacji (posiadamy na to aktualną wycenę)
  • dom w bardzo dobrym stanie technicznym, dla zainteresowanych zakupem udostępniamy wszystkie aktualne przeglądy (kominiarski, gazowy, budowlany, elektryczny, świadectwo charakterystyki energetycznej)

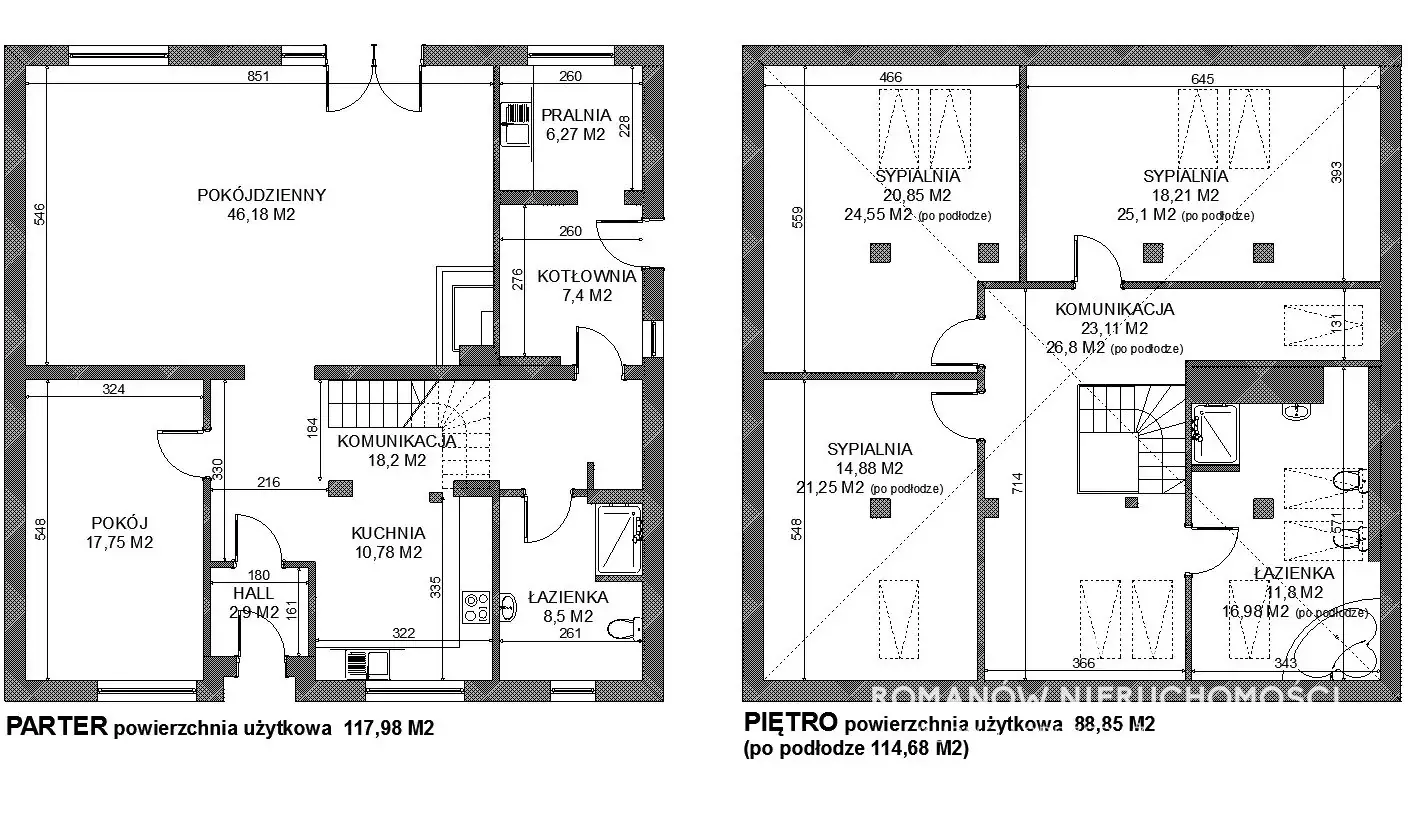
Układ domu

Parter około 117,98 mkw.

  • salon+jadalnia 46,18 mkw.
  • kuchnia 10,78 mkw.
  • pokój/sypialnia 17,75 mkw.
  • wiatrołap 2,9 mkw.
  • łazienka z prysznicem 8,5 mkw.
  • kotłownia 7,4 mkw.
  • pralnia 6,27 mkw.
  • komunikacja 18,2 mkw.

Piętro około 88,85 mkw.

  • sypialnia 20,85 mkw.
  • sypialnia 18,21 mkw.
  • sypialnia 14,88 mkw.
  • łazienka z prysznicem i wanną 11,8 mkw.
  • komunikacja 23,11 mkw.

Strych nieużytkowy

Lokalizacja

  • 10 minut pieszo (800m) stacja PKP, dojazd kolejką podmiejską na stację Poznań Główny 20 minut
  • komunikacja autobusowa
  • około 3 km zjazd na S11
  • w Golęczewie żłobek, przedszkole, szkoła podstawowa

Powyższy opis ma charakter informacyjny i nie stanowi oferty w rozumieniu przepisów Kodeksu Cywilnego. Informacja przekazana w ogłoszeniu jest dokładna i rzetelna, ale nie jest gwarantowana i powinna zostać niezależnie zweryfikowana.

Umów bezpłatną konsultację

Porozmawiajmy o sprzedaży Twojej nieruchomości.

Odezwę się w ciągu 2 godzin w dni robocze.

Umów bezpłatną konsultację